nieruchomości
Wypełnij formularz i kliknij SZUKAJ poniżej

Numer oferty
 
 
Lokalizacja
Ulica
Cena
Powierzchnia
Liczba pokoi
oferty specjalne

Notes » Zgłoś ofertę » Kalkulator opłat » Kontakt »

 

Szczegóły Oferty

mieszkanie ( sprzedaż )

503/4673/OMS

Numer:
503/4673/OMS
Miasto:
KIELCE, HERBY
Cena:
269 000 PLN kalkulator
Cena za mkw:
6 803,24 PLN mkw
Powierzchnia:
39.54 m2
Liczba pokoi:
2
Piętro:
2
Liczba pięter:
3
Rodzaj kuchni:
aneks
Stan:
do kapitalnego remontu
Rok budowy:
1978
Ochrona:
TAK

Opis

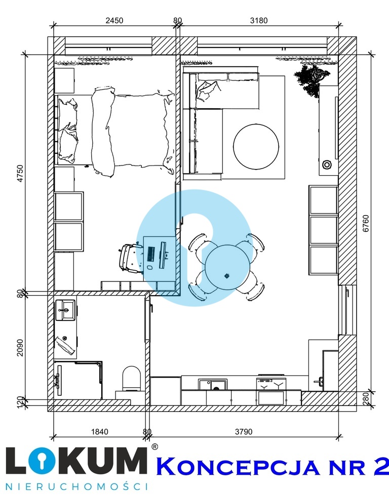
Posiadamy w ofercie sprzedaży mieszkanie do remontu z możliwością adaptacji na dwa komfortowe pokoje. Łączna powierzchnia mieszkania 39,54 m2 się w budynku mieszkalnym wielorodzinnym.
Mieszkanie zlokalizowane na drugim piętrze w bloku 3 piętrowym. Ekspozycja okien na zachód. Mieszkanie bez balkonu i bez pomieszczeń przynależnych.

W skład lokalu mieszkalnego wchodzi
- pokój - pow. 31,69 m2 do dowolnej aranżacji i podziału na dwa pokoje (dzienny i sypialnia)
- aneks kuchenny - pow. 3,37 m2,
- łazienka z wc - pow. 4,48 m2.

Budynek został ocieplony, wyposażony w instalację elektryczną, wodociągową zasilaną z sieci miejskiej, kanalizacyjną, odgromową oraz centralnego ogrzewania. Budynek posiada własną kotłownię po gruntownym remoncie i wyminie na piec gazowy. Budynek po termomodernizacji. Budynek nie posiada balkonów.

Mieszkanie posiada Świadectwo Charakterystyki Energetycznej.

W cenie projekt wizualizacyjny i koncepcyjny.
Czynsz administracyjny 450 zł

Cena 269000

Zapraszamy do oglądania.

Pośrednik odpowiedzialny zawodowo za wykonanie umowy pośrednictwa Hawryszko Igor (licencja nr 22475)

HaQ Finance & Nieruchomości
Igor Hawryszko
25-419 KIELCE
UL. ROLNA 6 LOK 1
tel. 888799979

Opis oferty zawarty na stronie internetowej sporządzany jest na podstawie oględzin nieruchomości oraz informacji uzyskanych od właściciela, może podlegać aktualizacji i nie stanowi oferty określonej w art. 66 i następnych K.C.

POLECAMY OBIEKTYWNĄ OBSŁUGĘ NIEZALEŻNEGO DORADCY FINANSOWEGO,
KTÓRY WYNEGOCJUJE DLA PAŃSTWA KORZYSTNE WARUNKI KREDYTOWE, A TAKŻE ODSTĘPSTWO OD OBOWIĄZKOWYCH UBEZPIECZEŃ BANKOWYCH. W RAZIE KONIECZNOŚCI USUNIE NEGATYWNĄ HISTORIĘ KREDYTOWĄ W BIK'U





Świadectwo charakterystyki energetycznej - zapotrzebowanie na energię

EU - użytkową (kWh/m2*rok) 77.86 EK - końcową (kWh/m2*rok) 170.84 EP - nieodnawialną energię pierwotną (kWh/m2*rok) 191.14 EC02 - Wielkość emisji CO2 (t C02/m2*rok) 0.03 UOZE - Udział odnawialnych źródeł energii w zapotrzebowaniu na energię końcową [%] 0.00

 
Lokum Nieruchomości Kielce
Rolna 6 lok 1
25-419 KIELCE
tel.: 888799979
email: biuro@znajdzlokum.pl
Wyślij ofertę na e-mail

Jeśli chcesz dostać tą ofertę w e-mailu,
podaj swój adres.
 
 

Prześlij wiadomość do naszej firmy
Imię i Nazwisko 
Telefon 
E-mail 
Treść zapytania 

Wyrażam zgodę na przetwarzanie moich danych osobowych przez firmę Lokum Nieruchomości Kielce dla celów związanych z działalnością pośrednictwa w obrocie nieruchomościami, jednocześnie potwierdzam, iż zostałem poinformowany o tym, iż będę posiadać dostęp do treści swoich danych do ich edycji lub usunięcia.