nieruchomości
Wypełnij formularz i kliknij SZUKAJ poniżej

Numer oferty
 
 
Lokalizacja
Ulica
Cena
Powierzchnia
Liczba pokoi
oferty specjalne

Notes » Zgłoś ofertę » Kalkulator opłat » Kontakt »

 

Szczegóły Oferty

lokal ( wynajem )

265/4673/OLW

Numer:
265/4673/OLW
Miasto:
KIELCE
Cena:
11 392 PLN
Cena za mkw:
89 PLN mkw
Powierzchnia:
128.00 m2
Piętro:
0
Liczba pięter:
4
Rok budowy:
2022
Winda:
TAK

Opis

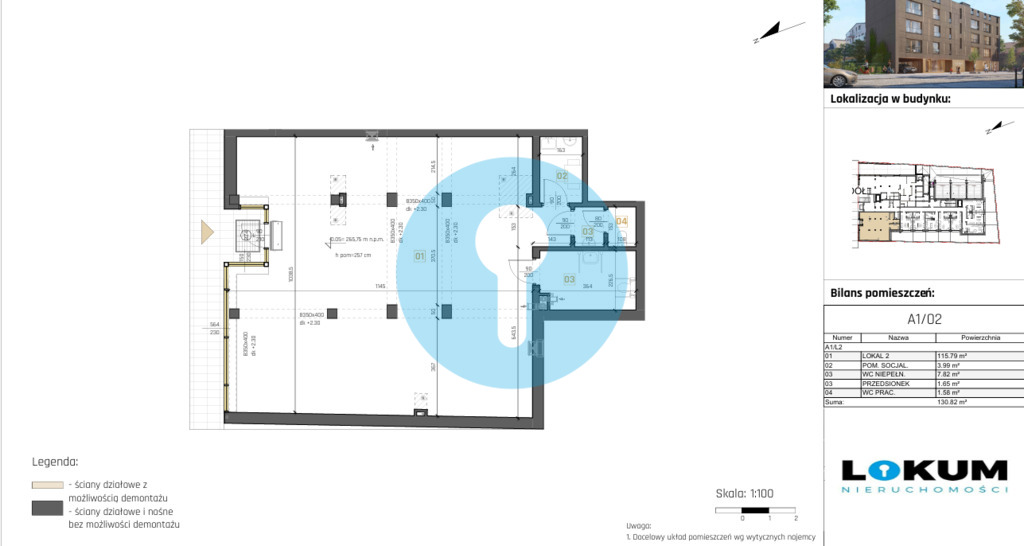
Oferujemy na wynajem atrakcyjny lokal użytkowy o powierzchni 128 m2, położony na parterze budynku w samym sercu miasta.
Lokal znajduje się w stanie do wykończenia, co daje najemcy szerokie możliwości aranżacyjne i dopasowania przestrzeni do indywidualnych potrzeb. Układ lokalu obejmuje 3 pomieszczenia. Istnieje również możliwość zaaranżowania ogródka przed lokalem, co dodatkowo zwiększa potencjał inwestycyjny.
Najważniejsze informacje powierzchnia 128 m2
parter
układ 3 pomieszczenia
stan do wykończenia
przeznaczenie dowolne - handel, usługi, biuro, gastronomia
Warunki finansowe czynsz 89 zł/m2 netto + 23% VAT
czynsz administracyjny 600 zł
dodatkowo prąd i gaz wg zużycia
Atuty lokalizacji prestiżowa lokalizacja w ścisłym centrum
duży potencjał aranżacyjny
możliwość prowadzenia różnorodnej działalności
Dzięki wyjątkowej lokalizacji oraz elastycznemu przeznaczeniu, lokal stanowi doskonałą propozycję dla firm poszukujących przestrzeni w reprezentacyjnym miejscu.
Na życzenie istnieje również możliwość zakupu lokalu.

Chcesz umówić się na prezentację lub dowiedzieć się więcej?

Skontaktuj się z nami już dziś - ten lokal może być Twój!

Opiekun oferty
Patryk Bąk
tel. 509 609 609

Pośrednik odpowiedzialny zawodowo za wykonanie umowy pośrednictwa Hawryszko Igor (licencja nr 22475)

HaQ Finance & Nieruchomości
Igor Hawryszko
25-419 KIELCE
UL. ROLNA 6 LOK 1
tel. 888799979

Opis oferty zawarty na stronie internetowej sporządzany jest na podstawie oględzin nieruchomości oraz informacji uzyskanych od właściciela, może podlegać aktualizacji i nie stanowi oferty określonej w art. 66 i następnych K.C.

POLECAMY OBIEKTYWNĄ OBSŁUGĘ NIEZALEŻNEGO DORADCY FINANSOWEGO,
KTÓRY WYNEGOCJUJE DLA PAŃSTWA KORZYSTNE WARUNKI KREDYTOWE, A TAKŻE ODSTĘPSTWO OD OBOWIĄZKOWYCH UBEZPIECZEŃ BANKOWYCH. W RAZIE KONIECZNOŚCI USUNIE NEGATYWNĄ HISTORIĘ KREDYTOWĄ W BIK'U





Świadectwo charakterystyki energetycznej - zapotrzebowanie na energię

EU - użytkową (kWh/m2*rok) 77.86 EK - końcową (kWh/m2*rok) 170.84 EP - nieodnawialną energię pierwotną (kWh/m2*rok) 191.14 EC02 - Wielkość emisji CO2 (t C02/m2*rok) 0.03 UOZE - Udział odnawialnych źródeł energii w zapotrzebowaniu na energię końcową [%] 0.00


Lokum Nieruchomości Kielce
Rolna 6 lok 1
25-419 KIELCE
tel. 888799979
email biuro@znajdzlokum.pl






Lokum Nieruchomości Kielce
Rolna 6 lok 1
25-419 KIELCE
tel. 888799979
email biuro@znajdzlokum.pl



Świadectwo charakterystyki energetycznej - zapotrzebowanie na energię

EU - użytkową (kWh/m2*rok) 9.27 EK - końcową (kWh/m2*rok) 34.56 EP - nieodnawialną energię pierwotną (kWh/m2*rok) 75.46 EC02 - Wielkość emisji CO2 (t C02/m2*rok) 0.01 UOZE - Udział odnawialnych źródeł energii w zapotrzebowaniu na energię końcową [%] 0.00

 
Lokum Nieruchomości Kielce
Rolna 6 lok 1
25-419 KIELCE
tel.: 888799979
email: biuro@znajdzlokum.pl
Wyślij ofertę na e-mail

Jeśli chcesz dostać tą ofertę w e-mailu,
podaj swój adres.
 
 

Prześlij wiadomość do naszej firmy
Imię i Nazwisko 
Telefon 
E-mail 
Treść zapytania 

Wyrażam zgodę na przetwarzanie moich danych osobowych przez firmę Lokum Nieruchomości Kielce dla celów związanych z działalnością pośrednictwa w obrocie nieruchomościami, jednocześnie potwierdzam, iż zostałem poinformowany o tym, iż będę posiadać dostęp do treści swoich danych do ich edycji lub usunięcia.